Обзор оборудования мини-комплекса, а также описание результатов, достигнутых в области качества и производительности.

21/11/2014 11:11am

Автор: Геннадий Есаулов, Andrea Michielan, Aurelio Mortoni, Colloredo Marco, Marco Rinaldi

Категории: электрометаллургия

Завод Интерпайп Сталь - самый большой комплекс  по производству круглых заготовок и блюмов в Восточной Европе с номинальной производительностью 1,32 млн тонн/год, построенный «под ключ» компанией Danieli. 
Сортамент выпускаемой продукции завода  Интерпайп Сталь включает высококачественные марки сталей, например, производство стали для железнодорожных колес составляет около 25% от общего объема производства и осуществляется в 4-х ручьевой машине непрерывного литья блюмов (МНЛЗ 2). Вторая машина             (МНЛЗ 1)  – 5-ти ручьевая машина непрерывного литья заготовок производит заготовки  преимущественно диам. 150мм, который гарантированно производится на скорости 3,5м/мин для низкоуглеродистых марок сталей.  
Завод расположен в городе Днепропетровск (Украина), поэтому несколько решений, таких как, защитный кожух ДСП или изоляция внешних стен были использованы для снижения воздействия на окружающую среду.

Ключевые слова: железнодорожные колеса, бесшовные трубы, круглые заготовки, электродуговая сталеплавильная печь - ДСП, непрерывное литье, высокая скорость разливки

Завод по производству высококачественных марок сталей ИНТЕРПАЙП СТАЛЬ. Обзор оборудования мини-комплекса, а также описание результатов, достигнутых в области качества и производительности.

Геннадий Есаулов, Интерпайп Сталь
Andrea Michielan, Интерпайп Сталь

Aurelio Mortoni – Danieli Officine Meccaniche S.p.A.
Colloredo Marco – Danieli Officine Meccaniche S.p.A.
Marco Rinaldi – Danieli Officine Meccaniche S.p.A.
 

 

Введение

Ключевые задачи завода Интерпайп Сталь - усиление вертикальной интеграции группы, увеличение производства заготовок и блюмов, использование экономических и экологических преимуществ электродуговых сталеплавильных печей с непрерывной разливкой по сравнению с мартеновскими печами  с разливкой в слитки.
Компания Danieli успешно ввела в эксплуатацию мини-завод Интерпайп Сталь в 2012 году, достигнув высокой производительности и качества выпускаемой продукции, несмотря на большой сортамент – не только марочный, а также и размерный для круглых заготовок (9 размеров диаметром от 150мм до 470мм).   
Достижение таких результатов становится еще более примечательным, если учесть  непростые условия компактной компоновки оборудования (одна ДСП обеспечивает две одновременно работающие МНЛЗ, каждая из которых имеет производительность ниже, чем ДСП). Такая схема обеспечивает надлежащий баланс между инвестиционными вложениями и производительностью.
Настоящая статья фокусирует внимание на описании оборудования мини-комплекса, а также на результатах, достигнутых в области качества и производительности.

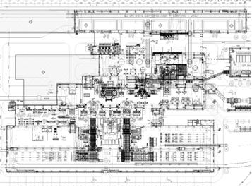
2. Особенности завода

2.1 План размещения оборудования

Интерпайп Сталь – 3-х пролетный завод с одной ДСП, одной двухпозиционной УКП, одной двухкамерной установкой вакуумирования, двумя МНЛЗ и 2-мя складами заготовок и блюмов. Скраповый двор выполнен однопролетным (см. рис. 1). Данная компоновка позволяет будущее расширение со скраповым двором большей длины, дополнительной ДСП и УКП, а также наличия 6-ти ручьев на МНЛЗ 1.

размещения оборудования

Рисунок 1. План размещения оборудования ЭСПЦ завода Интерпайп

Характерной особенностью данного завода является размещение 5-ти грандиозных арт-объектов художника  Олафура Элиассона с целью формирования специального отношения работников к своему труду, чтобы сделать завод более «дружественным» для населения города и подчеркнуть низкий уровень воздействия производства на окружающую среду, расположенного вблизи жилых районов. Ниже (см. рис. 2) представлена серия «Фрески вашего тепла» (‘Your heat murals’) –  группа гигантских термических изображений на стенах завода.


ЭСПЦ завода Интерпайп

Рисунок 2. Главный вид ЭСПЦ завода Интерпайп

2.2 ДСП

ДСП завода Интерпайп - 7,5-метровая печь с эркерным выпуском и трансформатором 140MВA. Она работает, поддерживая «болото» массой 26т и рассчитана на номинальную массу выпуска 160т. Номинальная продолжительность плавки от выпуска до выпуска - 50мин для достижения производительности 192т/час. Примечательно, что потребляемая мощность при времени (34,5 мин) значительно ниже контрактного значения при работе на 100% лома (38мин).

 

ДСП на заводе Интерпайп

ДСП на заводе

Рисунок 3. ДСП на заводе Интерпайп

2.3 Двухпозиционная УКП


С целью быстрой обработки и наличия «буфера» для приведения в соответствие разных  производительностей ДСП и двух МНЛЗ была разработана двухпозиционная УКП с трансформатором 28MВA и электрододержателями, что позволило достичь величины скорости нагрева равной 5,6°C/мин, что значительно выше гарантированной - 4,7°C/мин.

Показатели удаления серы на заводе Интерпайп в апреле 2014 г.


УКП на заводе Интерпайп

УКП на заводе

Рисунок 4. УКП на заводе Интерпайп

В обоих положениях УКП укомплектована трайб-аппаратами из 4-х нитей, фурмой аварийного перемешивания, полуавтоматической системой отбора проб стали и замера температуры, загрузочным бункером.    Один из основных факторов внутреннего качества - содержание серы, поэтому Интерпайп разработал регламент УКП для получения окончательной величины содержания серы ниже 80м.д., достигая, в среднем, 63% удаления серы, включая кремний и калий.

2.4 Двухкамерная установка вакуумирования

Установка вакуумирования с двумя камерами и одним корпусом установлена вблизи УКП для обеспечения соблюдения строгих требований к производству некоторых марок сталей, преимущественно разливаемых на МНЛЗ 2, и в случае одновременной работы обеих МНЛЗ  – для обеспечения дополнительного «буфера» для ДСП и УКП.
Установка вакуумирования оборудована 4-х ступенчатым пароэжекторным насосом, новейшая конструкция которого была разработана на основании опыта компании Danieli в данной области.
В связи с тем, что основной риск отбраковки стали для железнодорожных колес обусловлен наличием водородных флокенов, был разработан метод достижения очень низкого содержания водорода, 0,80м.д. в среднем после 22мин. вакуумирования, что составляет практически половину от гарантированной величины (1,5м.д.).

Установка вакуумирования

Установка вакуумирования

Рисунок 5. Установка вакуумирования завода Интерпайп и содержание водорода после  вакуумирования для колесной стали

2.5 Машина непрерывного литья заготовок (МНЛЗ 1)

МНЛЗ 1 на заводе Интерпайп имеет 5-ти ручьевую конфигурацию, жесткую затравку, две точки разгиба и радиус 12м, для обеспечения того же уровня площадки, что и МНЛЗ 2.
Промковш выполнен несимметричным с целью обеспечения установки дополнительного опционального 6-го ручья и имеет емкость 35тонн. Поток жидкой стали, подаваемой из промковша в кристаллизатор контролируется системой стопорных стержней. Гидравлический стол качания гарантирует точный контроль качания кристаллизатора, так же как и выбор соответствующих режимов качания с целью оптимизации смазки заготовки и качества ее поверхности.   
Кристаллизатор выполнен с криволинейной секцией,  длиной 780мм, с параболическим конусом. Уровень стали измеряется стандартной радиоактивной системой. Этот проект был первым, в котором компания Danieli использовала новый конус параболической формы для решения типовых проблем литья круглых заготовок малых диаметров (продольные трещины), существующих даже при достижении очень высоких скоростей разливки.

 

показатели скорости разливки

показатели скорости разливки заготовки

Рисунок 6. МНЛЗ 1 завода Интерпайп и показатели скорости разливки заготовки диам. 150мм


Максимальная средняя устойчивая величина скорости достигнутой на МНЛЗ 1 для диам. 150мм составила 3,7м/мин для марок сталей  10Y, 15GY и 20Y, что значительно выше гарантированной скорости 3,4м/мин. Даже разливая на очень высоких скоростях, МНЛЗ 1 подтвердила свою надежность, достигнув низкого показателя прорыва ручья, который, в основном (55%), обусловлен проблемами во время первой плавки в серии. Вторичное охлаждение воздушным туманом, отвод 5-ти подающих роликов и усилия правильных модулей были оптимизированы для получения малой пористости (в среднем 0,8 согласно OCT 14-1-235 -91).  

 

Показатель прорыва ручья

Распылители воздушного тумана МНЛЗ 1

 

Показатель прорыва ручья завода Интерпайп

 

Распылители воздушного тумана МНЛЗ 1
 на заводе Интерпайп

Рисунок  7a

Основная продукция МНЛЗ 1 - заготовки (диам. 150-290мм) для бесшовных труб и линейных труб согласно API 5CT и API 5L. Сортамент данной продукции в ЭСПЦ завода Интерпайп составляет: диам. от 60мм до 114мм и толщиной 4,8-6,9мм с окончательной проверкой качества методом ультразвукового контроля с жесткими допусками.

 

МНЛЗ 1 завода Интерпайп

Заготовка

Рисунок 7б.  Заготовка, производимая на МНЛЗ 1 завода Интерпайп диам. 150мм при скорости  3,35 м/мин, и полученная из нее бесшовная труба

 

2.6 Машина непрерывного литья блюмов (МНЛЗ 2)

МНЛЗ 2 имеет 4-х ручьевую конфигурацию, жесткую затравку, три точки изгиба и радиус 12м. Расстояние между ручьями составляет 1,8м.
Емкость промковша - 30тонн - и его конструкция были оптимизированы благодаря CFD анализу (см. рис. 8б), который показывает, что для выбранной конфигурации максимальный размер включений, попадающих из промковша в кристаллизатор составляет 120мкм и что максимальная скорость на уровне мениска промковша находится в пределах 0,20м/с, предотвращая захват шлака.

 

 

                                   МНЛЗ 2 

Скорость на уровне промковша

Рисунок 8. МНЛЗ 2, вид сбоку

Рисунок 8б. Скорость на уровне мениска промковша

Поток жидкой стали, подаваемой из промковша в кристаллизатор, контролируется стопорными стержнями, как и в МНЛЗ 1. Разливочный стакан типа SES не допускает переокисления жидкой стали, давая возможность выполнять замену промковша на лету, которая обычно выполняется для колесных марок сталей с серией из 41 плавки, которая является максимальной из достигнутых серий.
Гидравлический стол качания гарантирует жесткий контроль качания кристаллизатора. Кристаллизатор имеет криволинейную секцию и длину 780мм. Уровень стали в кристаллизаторе измеряется стандартной радиоактивной системой, и автоматическая добавка шлакообразующей смеси выполняется для предотвращения захвата самой смеси (см. рис. 8в), что может привести к дефектам.
Качество внутренней структуры литой заготовки было улучшено благодаря надлежащей настройке двух перемешивателей (M-EMS и F-EMS), что очень важно при производстве колесных марок сталей из – за жестких требований к качеству внутренней структуры. На этом заводе было решено применить инновационный подход к регулированию FEMS с целью достижения максимальной интенсивности перемешивания и предотвращения дефекта «белой полосы»: ток/частота FEMS и режим (непрерывный или переменный) меняется в зависимости от скорости  на протяжении эксплуатации (см. рис. 8г).

Автоматическая добавка

Динамическая настройка

 

Рисунок  8в. Автоматическая добавка ШОС

 

Рисунок  8г. Динамическая настройка FEMS

Очень малая центральная пористость и отсутствие белой полосы были подтверждены не только макроструктурой литья, но также и достижением микроструктуры одного и того же колеса из заготовки, полученной на МНЛЗ и из слитка (см. рис. 9).

Сечение колеса

Рисунок. 9a. Сечение колеса,  изготовленного с использованием ДСП и МНЛЗ 2

 использование мартеновской печи и слитка

Рисунок 9б. Сечение колеса,  изготовленного с использованием мартеновской печи и слитка

При помощи крана блюмы транспортируются с холодильника на участок охлаждения блюмов. Для того чтобы улучшить качество некоторых восприимчивых к трещинам марок сталей, были предусмотрены дополнительные участки медленного охлаждения.
Тщательный анализ технологического процесса от установки УКП до прокатного стана завода Интерпайп был выполнен с целью улучшения понимания ключевого параметра, позволяющего МНЛЗ 2 производить колесную сталь с содержанием углерода 0,60% диам. 450мм при скорости 0,37м/мин, при этом удерживая уровень пористости не выше чем 2,0 для 90% темплетов и средней величине отбраковки колесной стали ниже 5% при предельном значении  ультазвукового контроля - 2мм. Этот результат находится в полном соответствии с гарантированными скоростью и качеством внутренней структуры колесных марок стали.  

3. График производительности и сортамент выпускаемой продукции

17 января и 7 февраля 2012 года первая продукция на МНЛЗ 2 (блюм) и МНЛЗ 1 (заготовка) была успешно выпущена. В результате устойчивого роста уровня производительности завода с момента его пуска производительность 115тыс. тонн/мес была достигнута в течение 6 месяцев (март-август 2013).

Помесячная производительность
Рисунок 10. Помесячная производительность завода Интерпайп

Объем производства 70-90тыс. тонн/мес позволяет заводу Интерпайп выполнять 15-19 плавок в день, то есть работать с примерной производительностью 100-130тонн/час, что возможно используя только одну МНЛЗ, выполняя смену промковша на лету для МНЛЗ 2, или запуская другую МНЛЗ строго перед началом замены ручья без наличия «буфера» или остановки ДСП.
Для выпуска 115тыс. тонн/мес заводу Интерпайп необходимо выполнять 25 плавок в день, что соответствует приблизительно производительности 170тонн/час. Эта величина может быть достигнута только с двумя одновременно и почти все время работающими МНЛЗ.

Сортамент продукции ЭСПЦ достаточно широкий и, в настоящее время он главным образом сфокусирован на производстве и разливке трубных марок сталей с низким содержанием углерода на МНЛЗ 1 и колесных марок стали (см.рис.2) на МНЛЗ 2 с 3% объема продукции для экспорта. Цель на ближайшее будущее - увеличить эту цифру до 15%, начиная с рынков Европы, Северной и Южной Америки.

Сортамент выпускаемой продукции

Сортамент

Рисунок 12. Сортамент выпускаемой продукции заводом Интерпайп в 2014 году

Новые марки сталей были недавно испытаны с целью увеличения сортамента выпускаемой продукции. Наиболее сложные в производстве марки: 28Х3СНМВФ (0.3%C, 1%Si, 3% Cr, 1% Ni, 1%Mo, 0.07%V), P23HBB (0.25%C, 0.9%Cr, 0.2% Mo, 0.02%Nb, 0.02%Ti, 0.09%Al) и 18Г2У1 (0.2%C, 0.02%S, 0.035% Al). Параллельно с производством выполняются непрерывные усовершенствования. Был получен сертификат ISO 9001-2009, и некоторые ведущие компании нефтегазовой промышленности дали положительную оценку заводу Интерпайп Сталь по производству стальных заготовок для прокатки и производства труб.
В настоящий момент наиболее важной продукцией для сталеплавильного завода Интерпайп является блюмы для производства железнодорожных колес, которые изготавливаются прокаткой не только внутри группы Интерпайп (в основном марка 2 по ГОСТ10791 с внешним диаметром от 650мм to 1269мм), но и на других прокатных станах (такие марки как ER7, с 0.50% содержанием углерода и легированных хромом).

 

Колесная марка стали

Однородная феррито-перлитная структура

Колесная марка  стали 2 диам.  957мм

Однородная феррито-перлитная структура прокатанной колесной марки  стали 2

Рисунок 13

 

Несмотря на то, что новые более жесткие допуски на наличие внутренних дефектов, выявляемых в ходе ультразвукового контроля, (2мм по сравнению с ранее действующими 3мм) железнодорожных колес были приняты украинскими стандартами с января 2013 года, было достигнуто 2% снижения брака колес в сравнении с 2012 годом при работе в режиме мартеновская печь+слиток. Этот результат совместно с более высоким значением выхода годного металла получаемого на МНЛЗ в сравнении с разливкой слитков позволил достичь значительной экономии вложений при более высоком качестве данного продукции.
Следующая задача – выйти на уровень предела ультразвукового контроля в 1мм, увеличивая, насколько возможно, выход годного металла.

Заключение

Мини-завод Интерпайп Сталь после одного года эксплуатации достиг проектных показателей по качеству и производительности, будучи построенным компанией Danieli «с нуля» и «под ключ».
Достижение таких результатов еще более значимо, учитывая сложность выбранной компактной компоновки оборудования и требования к качеству продукции, предъявляемые конечными потребителями, в состав которых входят компании нефтегазовой промышленности и производители железнодорожных колес.
Завод расположен в городе Днепропетровск (Украина), поэтому несколько решений, таких как, защитный кожух ДСП или изоляция внешних стен были использованы для снижения воздействия на окружающую среду.


Презентация

Контакты

 

 

Контакты

НАШІ КОНТАКТИ:

[email protected]

[email protected]

м. Дніпро

ISSN 20760507

Керівник проекту - Гриньов Володимир Анатолійович

Партнеры